Windsor's Downtown Mission gave supporters a sneak peak at what's to come at it's new location on Ouellette Ave.
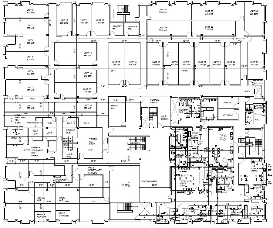
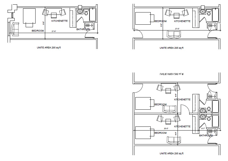
Executive Director Ron Dunn laid out plans for the former Central Branch of the Windsor Public Library that include 17 studio and 17 one-bedroom apartments to help put a dent in the city's 4,500 person wait list for affordable housing.

Plans for the second floor of the Downtown Mission's future location at the former Central Branch of the Windsor Public Library at 850 Ouellette Ave. April 13, 2019. (Photo courtesy of The Downtown Mission)

Plans for the apartments going into the second floor of the Downtown Mission's future location at the former Central Branch of the Windsor Public Library at 850 Ouellette Ave. April 13, 2019. (Photo courtesy of The Downtown Mission)
Dunn says the plan was to sell 150 tickets and kick-off the Building Hope Campaign Friday, but 170 people came forward for the dinner and helped the mission raise $50,000.
He hopes showing how much good can be done will comfort those concerned with the move to Ouellette Ave.
"Having somebody in to just understand what we're about, I think goes a long way and I guess I'm here to say that those fears, we'll work with anybody on this, but this is a necessary step for those who we serve and it should be celebrated," says Dunn
The 100,000-sq.ft. building will also house a kitchen that can pump out 900 meals a day, a dining room for 350 people, a market, and space for medical, financial, and mental health services.
Services Dunn says will give immediate help to those in crisis.
"Not come see me in the morning, make an appointment, all the things we have to do now based on our space and our situation, that goes away in this building," says Dunn. "We're really proud and excited, it's a little scary because there's a lot of money to be raised on top of our operating budget, but we're confident. Essex County, Windsor, has always been exceptional with us and I'm sure it will be no different this time."