Lakeshore council has given the green light to a new fast-food restaurant in the municipality.
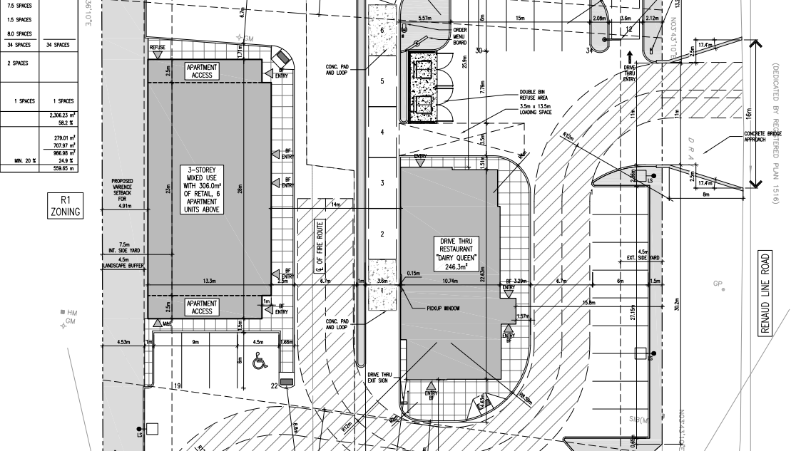
During Tuesday's meeting, council approved the rezoning at County Road 22 and Renaud Line Road for a Dairy Queen, and for a mixed-use three storey building.
The Dairy Queen will have a drive-thru, and the mixed-use building will have the main floor be commercial space, with two upper storey's consisting of six residential units.
The proposal was unanimously approved by council, with an amendment for a median to be installed on County Road 22 to avoid left turns through the traffic light at that corner.
Council also approved for a meeting to take place with the applicant and nearby residents prior to the next steps to discuss any issues.
A handful of delegates attended the meeting expressing their concerns with traffic, noise from the drive-thru, and lights.
The property owner who lives next to proposed development expressed during the meeting some major concerns he has with this build.
"The impact of the noise on my property knowing that his [the developer] other locations have music playing all day for the patios, the emissions from vehicles that will be coming in through my yard, the lights going through our windows constantly, and additionally the proposed three-level apartment that's going to be looking directly into my backyard."
A neighbouring resident on Renaud Line Road says she's extremely worried about the traffic influx.
"Congestion is already there. We have a huge amount of foot traffic and bikes that come through there, people walking their dogs. And then we have to contend with delivery trucks that park on the side of the road to deliver to the grocery store, customers flying out very quickly out of that parking lot."
Kelsey Santarossa, ward 3 councillor for Lakeshore says wanted a median to be installed on County Road 22 to help with the direction of traffic flow.
"For me because of the proximity to the intersection itself, I wanted to make sure that coming out directly onto County Road 22 instead of going to Renaud at the light was really just a right in, right out situation, so that you didn't have folks trying to skirt across that one lane of traffic contending with people who might be turning right at the light and then trying to cross into oncoming traffic."
She says as the municipality grows it's great to see these developments.
"We're seeing the services, the shopping opportunities, the retail, the long term care follow that residential development. And I think that's what we can see a bit more coming along County Road 22, and council has been really excited to share some of that work that's upcoming and we've put some money in budget to support some design charettes of what the future of County Road 22 can look like."
Santarossa says there will be more conversations with nearby residents in the next stage.
"Residents in the adjoining properties can expect the developer with maybe some support from the municipality to just do a follow up and make sure that when things get to site plan that we're addressing concerns around potential noise, or light pollution, and things like that."
There will be a total of 34 parking spaces for the Dairy Queen, the commercial build, and the residential units.
Administration has stated that there are no concerns from a sewage allocation and treatment capacity standpoint.
The County of Essex says they have no immediate concerns with the Traffic Impact Study at that corner.